Eluthumadduval Bakery
The Eluthumadduval Bakery Project is a humanitarian engineering initiative carried out by EWB-SL and the EWB team from the Karlsruhe Institute of Technology (KIT), Germany. The project was established in Eluthumadduval, a region in northern Sri Lanka affected by decades of civil conflict, with the vision of fostering independence, security, and a path to self-help for war-affected women—particularly widows.
Vision and Goal:
The project aimed to create a safe space and sustainable source of income for women affected by war. By establishing a functioning bakery, the project offers a stable livelihood, enabling them to support their families, rebuild their lives, and take steps toward a better future. It promotes both economic and social empowerment, with the long-term goal of building a self-supporting community of women who uplift one another.Planning and Implementation:
The concept was developed collaboratively with local partners, including the non-profit Sisters of the Holy Cross, who oversee the bakery's daily operations. The design process took a year, ensuring that it aligned with local needs, cultural context, and sustainability goals. The construction—completed in just four months—included a new bakery building, a dry toilet, and a safe drinking water supply. These physical components represent the values of dignity, resilience, and progress.Key Project Objectives:
• Reconstruct the bakery to meet hygiene and safety standards and prevent its closure.• Introduce machinery and optimized space to increase efficiency and expand the range of baked products.
• Ensure financial independence by developing a viable business model that secures regular income for the widows.
• Reinvest profits into the bakery and the women’s welfare, thereby breaking the cycle of dependency on aid.
• Enable education for the widows' children through improved economic conditions, fostering long-term community development.
Social Impact and Gender Equality:
Aligned with the Millennium Development Goal of promoting gender equality and empowering women, the project helps war widows regain self-confidence and financial autonomy. It improves their social standing and contributes to a more inclusive image of women in Sri Lanka. The presence of female engineers from Germany during the project further emphasized the importance of women’s active participation in all aspects of development.Knowledge Exchange and Sustainability:
From the start, the project emphasized two-way knowledge transfer. By involving the local community in planning, construction, and business model development, the project promoted professional skills and economic thinking. This not only helped optimize bakery operations but also encouraged locals to apply these principles to improve their own circumstances.About Eluthumadduval
Located about 20 km past Elephant Pass along the AA09 Kandy–Jaffna Road, Eluthumadduval is a quiet, rural village that might appear almost deserted at first glance. But hidden behind its modest front are scattered homes, small shops, and a resilient community rebuilding from years of conflict. Once a front-line zone during the civil war, many buildings still bear bullet holes as silent witnesses to the past.
Despite its calm appearance, signs of recovery and progress are everywhere. A school is under construction, coconut plantations are being restored, and small businesses—like local shops, a hairdresser, and a hardware store—are bringing life back to the village. The train station remains unused, but its presence hints at the potential for future connectivity.
Eluthumadduval is a place of contrast—between destruction and rebuilding, isolation and quiet determination. Over time, its charm and the strength of its people become clear, leaving a lasting impression on all who visit.
One abandoned and destroyed house follows the next
A house newly built after the war
Construction is already underway here too
Barbed wire can be found on many properties
The war damage is clearly visible on this building on AA09
The town's unused market hall
The newly built school one day after its opening
Project Details: Eluthumadduval Bakery
The long-lasting impacts of the civil war in northern Sri Lanka have left thousands of families devastated. With many men having lost their lives in combat, perished following arrest and torture due to suspected ties to the LTTE, or having disappeared without a trace, an estimated 86,000 women in the northern and northeastern regions of the country have been left widowed. These women, now single parents, face the immense responsibility of providing for their families in a region where jobs are scarce and infrastructure remains heavily damaged. Many still live in crumbling homes or temporary shelters, burdened with duties that go against the traditionally defined roles for women in their communities.
To help restore hope and offer a stable income, a small bakery was established by and for women affected by war and violence. Using basic tools and equipment, the bakery produced papadum, a popular traditional snack. The sale of these products gave the women a modest but meaningful income, supporting their families and giving them a renewed sense of purpose.
The bakery employed eight women and one man, all working under limited conditions. However, the inadequate infrastructure and lack of compliance with health regulations—such as the absence of lockable windows and proper ceiling finishes—put the future of the bakery at risk. Local authorities warned of its closure unless it could meet the necessary hygiene and safety standards.
The women at work
Making Papadum
Drying the poppadom in the backyard
Kneading the dough
Drying the poppadom in the sun
Construction
The bakery building was constructed using a skeleton frame with timber roof trusses. Concrete columns and ring beams form a load-bearing framework, infilled with masonry, while non-load-bearing interior walls allow flexibility for future use. The foundations and columns were designed for potential expansion. The roof, made from 24 pre-assembled trusses, spans over 10 meters and is stabilized with wind and diagonal bracing, enabling a clear, open interior layout despite limited timber sizes in Sri Lanka.
Drinking Water
At our project site in Eluthumadduval on the Jaffna Peninsula, access to a municipal water and wastewater network is unavailable. To address this, we implemented a decentralized water supply and treatment system tailored to local needs and environmental conditions.
In this coastal region, most residents rely on shallow wells. Although deep wells have recently provided an alternative, excessive extraction from deep aquifers has triggered seawater intrusion, causing long-term groundwater salinization. To avoid worsening this issue, we chose not to construct a deep well.
Instead, we utilized an existing shallow well on-site, despite its high turbidity and mineral content. To make the water suitable for use, we designed a simple, low-cost, and locally maintainable filtration system. Water is pumped into an elevated tank, then flows by gravity through a multi-stage treatment process—starting with an open aeration unit and upflow gravel filters to remove turbidity, iron, and manganese. This is followed by a bio-sand filter that significantly reduces bacterial contamination.
The treatment system is housed in a secure well house and supplies clean water to a 1000-liter storage tank. From there, it is pumped to a rooftop tank, enabling distribution throughout the bakery for daily use.
This sustainable, decentralized system provides reliable and safe water without harming the region’s delicate groundwater resources.
Wastewater Concept
Why an Alternative Wastewater Concept?
At our project site in Eluthumadduval on the Jaffna Peninsula, there is no centralized sewer or wastewater treatment system. In fact, as of 2015, only around 3% of Sri Lanka’s population was connected to a sewer system, highlighting a nationwide gap in wastewater infrastructure. Given this context, we opted for an innovative, decentralized sanitation solution that is ecologically sustainable, economically viable, and replicable within the region.Learning from Global Innovations
Germany is actively exploring sustainable sanitation solutions aimed at closing natural material cycles and maximizing resource efficiency. Concepts like Ecological Sanitation (EcoSan) and Non-Sewered Sanitation Systems (NASS) promote the separation and reuse of wastewater streams—particularly urine and feces—to recover nutrients and reduce environmental impact. Inspired by these ideas, we adopted an approach that supports long-term water and soil protection in Eluthumadduval.Urine-Diverting Dry Toilets (UDDT)
We implemented Urine Diverting Dry Toilets (UDDTs) that separate urine and feces at the source, allowing for their safe reuse. Urine, which is germ-free, can be diluted and used as fertilizer in agriculture. Feces are collected in a dry chamber where they are treated with ash, sawdust, or lime, promoting dehydration and pathogen reduction over time. After about 12 months, the composted matter can be safely returned to the soil.This system operates without water, significantly reducing water consumption and preventing the contamination of groundwater—an essential concern in the Jaffna Peninsula, where over-extraction and seawater intrusion threaten freshwater resources.
Sustainable Impact
By using UDDTs, we not only reduce the environmental footprint of wastewater management but also contribute to the local economy and public health. The system is simple to maintain, can be built using local materials, and is easily replicable across similar rural settings. Most importantly, it aligns with the broader goals of sustainable development by conserving water, protecting groundwater from pollution, and returning nutrients to the soil.This project demonstrates that decentralized, waterless sanitation solutions are not only feasible but also vital for ensuring environmental resilience in water-scarce regions like Eluthumadduval.
The drainfield for wastewater
Our dry toilet during the construction phase
Survived the first rainy season well
Operating Concept
Building Design and Operational Support
Beyond the construction of the facility, including its water supply and decentralized wastewater management systems, we actively supported our local project partners in establishing a successful operation. Together, we carried out essential groundwork such as market research, cost estimation, and equipment selection. To ensure sustainable and efficient operations, we also facilitated training sessions focused on hygiene practices and basic accounting.Building Design and Operational Support
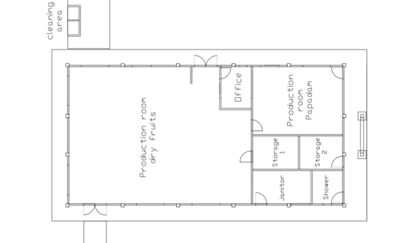
Purpose-Built Facility for Food Production The building was carefully designed to support food production activities with a clear and functional spatial layout. Initially, the facility will be used for the production of papadums, with plans to expand into dried fruit production in the future. To accommodate this, two separate production rooms have been constructed, each with its own dedicated storage area to ensure proper material handling and product organization.Building Design and Operational Support
Supporting Infrastructure for Staff and Management To promote employee well-being and hygiene, a shower and changing room have been provided for all staff. Additionally, a dedicated office space has been included for use by the management team. The building also includes a multifunctional room designed for flexible use—either as living quarters for security personnel or as a rest area for staff.This thoughtful integration of infrastructure and operations ensures smooth workflow, supports future expansion, and promotes a safe, hygienic, and productive working environment for everyone involved.
Dried curry leaves are an important staple ingredient in every Sri Lankan meal.
Not everything can be done by machines. Working the dough requires strength and endurance.
The finished product gradually reaches the shops in the area.
Drying the papadum flatbreads on the protected drying area.
This machine is responsible for pressing the dough pieces.
The finished poppadoms are portioned for packaging.
Interior
In accordance with Sri Lanka’s hygiene standards, a suspended ceiling was installed to prevent dust from the roof structure from entering the workspace. To enhance safety and boost production capacity, new machinery was acquired specifically to support papadum production. This includes a dough mixer, kneading machine, and pounding machine, which ease the workload for the women involved in production. Additionally, a dehydrator with a 200 kg capacity is available for drying both papadums and fruits.
To minimize energy costs, an outdoor drying area was set up behind the building, allowing papadums to be sun-dried during favorable weather conditions.
All equipment is powered by electricity. As the site already had an electrical connection, our task was to install the internal wiring in a practical and efficient manner.
Washing area in front of the building
Papadum production room
Dough kneading machine
Papadum - pounding machine
Drying area for the papadums
Dough mixer
The Opening Day
On October 29, 2015, we proudly celebrated the opening of our project in Eluthumadduval. After months of hard work and close collaboration with local partners, the facility was officially launched under the name "Sustaining Hands." The event was filled with joy, pride, and hope as we marked the beginning of a sustainable, women-led operation that will benefit the community for years to come.
Gallery





ø;

















































Status
Completed
Location:
Eluthumadduval
Category:
Community Project
Starting Date:
June 2014
End Date:
November 2015
Project Partners:
EWB Karlsruhe Institute of Technology (KIT), Germany
Project Details :
Partners of this Project
OUR PROJECTS
Similar Completed Projects





























